売買 店舗

愛知県一宮市小信中島字柳枯草場

価格

5,500万円

建物構造 木造
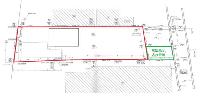
土地面積 公簿571.13㎡(約172.76坪)
建物延面積 159.15㎡
階建 地上2階
築年月 2017[H29]年03月
用途地域 第一種住居地域
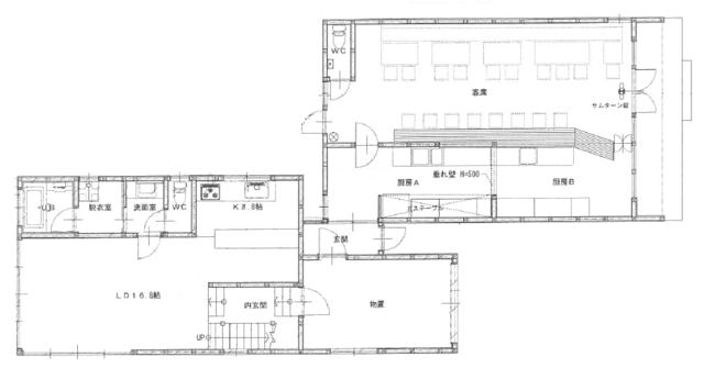
間取り図

間取り図

物件詳細

物件種別

売住宅以外の建物全部

物件種目

店舗

情報更新日

2026年01月06日

次回更新予定日

2026年03月27日

物件番号

6979759130

所在地

愛知県一宮市小信中島字柳枯草場 地図を見る

建物名

交通

名鉄尾西線奥町駅 徒歩28分  駅までmap

小学校

中学校

現況

その他

引渡可能時期

相談

価格

5,500万円

土地面積

公簿 571.13㎡ (約172.76坪)

私道面積

建物構造

木造

階建

地上2階

築年月

2017[H29]年03月

建物延面積

159.15㎡

建物面積

間取り

バルコニー

駐車場

有 無料

その他ランニングコスト

河川乗入使用料:年額 10,000円

その他一時金

条件等

土地権利

所有権

地目

宅地

都市計画

市街化区域

用途地域

第一種住居地域

地域地区

建ぺい率・容積率

60%・200%

容積率の制限内容

地勢

平坦

国土法

接道

【一方】 東 幅:5.8m 接面:4m

セットバック

法令上の制限

再建築

インスペクション

性能評価

工事完了予定年月

建築確認

施工会社名

管理員の勤務形態

総戸数

リフォーム・
リノベーション

設備

トイレ、バス・トイレ別、エアコン、都市ガス、給湯

特記

備考

河川乗入使用料 年額約10,000円 店舗部分は2022年3月増築店舗部分 延床面積63.76㎡ お客様用駐車場 7台分住居部分 延床面積95.39㎡河川法あり

取引態様

専任媒介

担当者

※物件に関するお問合せは、物件詳細ページの「情報提供会社」に表示されている不動産会社へ直接お願いいたします。

※間取り図は、現況を優先させていただきます。

情報提供会社

未来開発(株)

会社情報を見る

住所

愛知県一宮市平安1丁目3-12

交通

名鉄犬山線岩倉 徒歩分

TEL

0586-81-6016

FAX

0586-81-6017

免許番号

愛知県知事免許(9)第14875号

所属団体

(公社)愛知県宅地建物取引業協会
東海不動産公正取引協議会

loading