賃貸 店舗一部

大阪府枚方市東山1丁目

icon-new

賃料

9.9万円

管理費等 5,500円
敷金
礼金 2ヶ月
保証金 1ヶ月
階建・階 地上3階 2階部分
使用部分面積 41.4㎡(約12.52坪)

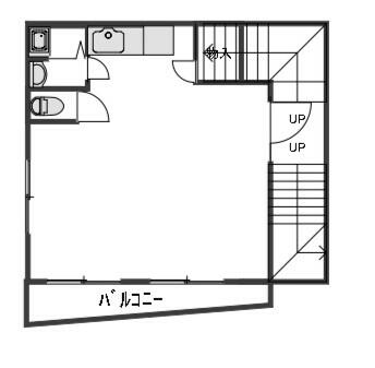
間取り図

間取り図

物件詳細

物件種別

賃貸住宅以外の建物一部

物件種目

店舗一部

情報更新日

2026年04月22日

次回更新予定日

2026年05月06日

物件番号

5103684897

所在地

大阪府枚方市東山1丁目 地図を見る

建物名

山岡ビル2階

交通

京阪電気鉄道京阪線樟葉駅 徒歩28分  駅までmap

小学校

中学校

現況

空家

入居可能時期

相談

賃料

9.9万円

管理費

共益費

5,500円/月

雑費

駐車場

有 12,000円/月

その他ランニングコスト

礼金

2ヶ月

敷金・精算

保証金・償却

1ヶ月

権利金

造作譲渡

鍵交換代

室内清掃費

その他一時金

家賃保証会社の初回保証料:104,500円

建物構造

鉄骨造

階建・所在階

地上3階 2階部分

築年月

1993[H5]年11月

使用部分面積

41.4㎡ (約12.52坪)

間取り

バルコニー

総戸数

契約期間

2年

更新料

フリーレント

定期借家

保険


※入居者や条件によっては、保険等内容が変更になる場合があります。

賃貸保証

クレジットカード決済

条件等

管理会社名

管理員の勤務形態

インスペクション

性能評価

リフォーム・
リノベーション

用途地域

第二種中高層住居専用地域

接道

設備

トイレ

特記

備考

取引態様

一般媒介

担当者

向新 (電話)0774-66-4141

※物件に関するお問合せは、物件詳細ページの「情報提供会社」に表示されている不動産会社へ直接お願いいたします。

※間取り図は、現況を優先させていただきます。

情報提供会社

丸菱建設(株) 京田辺営業所

住所

京都府京田辺市大住野上65番地3キンブリッジJR大住駅前E号室

TEL

0774-66-4141

FAX

0774-66-4417

免許番号

京都府知事免許(9)第8492号

所属団体

(公社)京都府宅地建物取引業協会
(公社)近畿地区不動産公正取引協議会

loading