賃貸 事務所

東京都中央区築地4丁目

賃料

9.35万円

管理費等 5,500円
敷金
礼金
保証金 6ヶ月
階建・階 地上5階 2階部分
使用部分面積 25.27㎡(約7.64坪)

築地場外市場エリア 店舗・事務所探しは築地不動産サービスまで♪

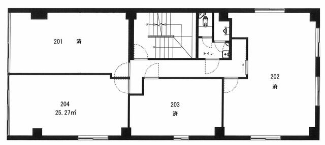
間取り図

間取り図

2025年3月共用トイレリノベーションいたしました/撮影日2025-04-01

2025年3月共用トイレリノベーションいたしました/撮影日2025-04-01

2025年3月共用トイレリノベーションいたしました/撮影日2025-04-01

2025年3月共用トイレリノベーションいたしました/撮影日2025-04-01

物件詳細

物件種別

賃貸住宅以外の建物一部

物件種目

事務所

情報更新日

2025年10月17日

次回更新予定日

2025年11月14日

物件番号

6968078485

所在地

東京都中央区築地4丁目 地図を見る

建物名

中富水産第一ビル

交通

東京都大江戸線築地市場駅 徒歩3分  駅までmap
東京地下鉄日比谷線築地駅 徒歩3分  駅までmap
東京都浅草線東銀座駅 徒歩6分  駅までmap

小学校

中央区立京橋築地小学校 402m

中学校

現況

空家

入居可能時期

相談

賃料

9.35万円

管理費

共益費

5,500円/月

雑費

駐車場

その他ランニングコスト

礼金

敷金・精算

保証金・償却

6ヶ月 、保証金償却 解約時 20%

権利金

造作譲渡

鍵交換代

室内清掃費

その他一時金

建物構造

RC

階建・所在階

地上5階 2階部分

築年月

1969[S44]年04月

使用部分面積

25.27㎡ (約7.64坪)

間取り

バルコニー

主要採光面:南東

総戸数

契約期間

2年

更新料

フリーレント

定期借家

定期借家

保険

要、借家人賠償責任付火災(例)
※入居者や条件によっては、保険等内容が変更になる場合があります。

賃貸保証

加入要(◇弊社指定の保証機関にご加入いただきます(振込・引落手数料借主負担))

クレジットカード決済

条件等

24時間利用可

管理会社名

管理員の勤務形態

インスペクション

性能評価

リフォーム・
リノベーション

用途地域

商業地域

接道

設備

トイレ、冷房、エアコン、暖房、インターネット対応、都市ガス

特記

備考

◆2025年3月共用トイレリフォーム済 ※退去時、原状回復工事費用借主負担 ◇電気・水道利用料金別途貸主より請求有り ◇再契約時事務手数料:新賃料の0.5ヶ月(別途消費税)

取引態様

一般媒介

担当者

※物件に関するお問合せは、物件詳細ページの「情報提供会社」に表示されている不動産会社へ直接お願いいたします。

※間取り図は、現況を優先させていただきます。

周辺環境情報
ジョナサン築地店 (84m)
飲食店

ジョナサン築地店 (84m)

築地KYビル (230m)
ショッピング施設

築地KYビル (230m)

城北信用金庫中央支店 (193m)
銀行

城北信用金庫中央支店 (193m)

京橋郵便局 (299m)
郵便局

京橋郵便局 (299m)

築地本願寺 (342m)
レジャー・観光

築地本願寺 (342m)

東劇 (365m)
レジャー・観光

東劇 (365m)

中央区立京橋築地小学校 (402m)
小学校

中央区立京橋築地小学校 (402m)

みずほ銀行築地支店 (465m)
銀行

みずほ銀行築地支店 (465m)

情報提供会社

築地不動産サービス(株)

会社情報を見る

住所

東京都中央区築地2丁目11-11

交通

東京メトロ日比谷線築地 徒歩1分

TEL

03-3541-8585

FAX

03-3541-8588

免許番号

東京都知事免許(9)第54234号

所属団体

(公社)東京都宅地建物取引業協会
(公社)首都圏不動産公正取引協議会

情報提供会社
loading