賃貸 店舗事務所

東京都渋谷区本町1丁目

賃料

69.85万円

管理費等 162,910円
敷金 6ヶ月
礼金 2ヶ月
保証金
階建・階 地上10階(地下2階) 1階部分
使用部分面積 141.51㎡(約42.8坪)

甲州街道沿い路面店。飲食店可、前テナント「宅配ピザ」。業種等諸条件相談可。定借2年、再契約可。

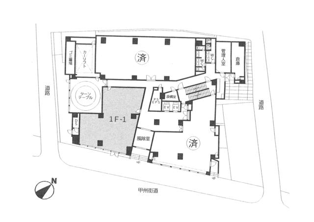
間取り図

間取り図

物件詳細

物件種別

賃貸住宅以外の建物一部

物件種目

店舗事務所

情報更新日

2025年11月21日

次回更新予定日

2025年12月19日

物件番号

5103638270

所在地

東京都渋谷区本町1丁目 地図を見る

建物名

初台共同ビル 1F-1

交通

京王電鉄京王線初台駅 徒歩4分  駅までmap
京王電鉄京王線幡ヶ谷駅 徒歩7分  駅までmap

小学校

中学校

現況

空家

入居可能時期

相談

賃料

69.85万円

管理費

162,910円/月

共益費

雑費

駐車場

空無 44,000円/月
機械式。普通車。

その他ランニングコスト

礼金

2ヶ月

敷金・精算

6ヶ月

保証金・償却

権利金

造作譲渡

鍵交換代

室内清掃費

その他一時金

建物構造

SRC

階建・所在階

地上10階(地下2階) 1階部分

築年月

1994[H6]年03月

使用部分面積

141.51㎡ (約42.8坪)

間取り

バルコニー

総戸数

契約期間

2年

更新料

フリーレント

定期借家

定期借家

保険


※入居者や条件によっては、保険等内容が変更になる場合があります。

賃貸保証

クレジットカード決済

条件等

飲食店可、24時間利用可

管理会社名

管理員の勤務形態

インスペクション

性能評価

リフォーム・
リノベーション

用途地域

接道

設備

ビルトインエアコン、個別空調、防犯カメラ、24時間セキュリティ、有人警備、都市ガス、エレベーター2基以上、駐輪場有(無料)

特記

備考

甲州街道沿い路面店。飲食店可、前テナント「宅配ピザ」。業種等諸条件相談可。定借2年、再契約可。

取引態様

一般媒介 (管理コード 0313)

担当者

※物件に関するお問合せは、物件詳細ページの「情報提供会社」に表示されている不動産会社へ直接お願いいたします。

※間取り図は、現況を優先させていただきます。

情報提供会社

(株)オフィス・オオカワ

会社情報を見る

住所

東京都豊島区東池袋1丁目31-13ライオンズマンション東池袋第三801

TEL

03-6907-4515

FAX

03-6907-4533

免許番号

東京都知事免許(3)第96146号

所属団体

(公社)東京都宅地建物取引業協会
(公社)首都圏不動産公正取引協議会

loading