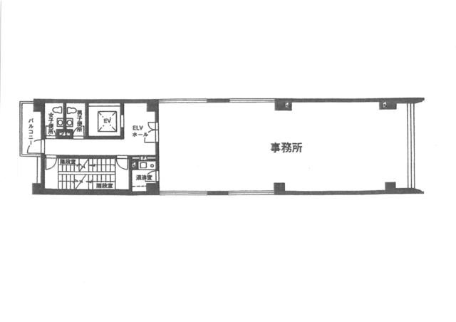
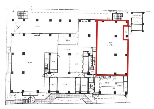
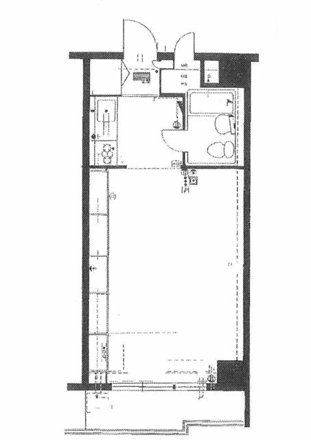
(株)オフィス・オオカワの貸事務所の検索結果

44

チェックした物件をまとめて