売買 中古一戸建

富山県氷見市比美町 4K

価格

250万円

築年月 1970[S45]年01月
土地面積 公簿110.94㎡(約33.55坪)
建物面積 161.87㎡(約48.96坪)
階建 地上2階
間取り 4K
建・容率 80%・400%

旧洋服店の店舗兼住宅☆比美町商店街・中の橋のたもとに位置し周囲には商業施設が充実してます♪湊川や氷見漁港に近く、お祭りが盛んなエリアでもあり”氷見暮らし”を満喫できそう!!

物件詳細

物件種別

売一戸建て住宅等

物件種目

中古一戸建

情報更新日

2025年11月20日

次回更新予定日

2025年12月18日

物件番号

6985198966

所在地

富山県氷見市比美町

交通

氷見線氷見駅 徒歩13分

小学校

氷見市立比美乃江小学校 1,249m

中学校

氷見市立北部中学校 2,809m

現況

空家

引渡可能時期

即時

価格

250万円

土地面積

公簿 110.94㎡ (約33.55坪)

私道面積

建物構造

木造

階建

地上2階

築年月

1970[S45]年01月

建物面積

161.87㎡ (約48.96坪)

間取り

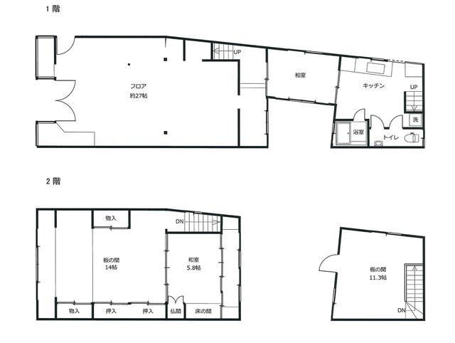
4K 和室14帖/和室9帖/和室5.8帖/和室5帖/K5帖
和 14・9・5.8・5 K 5

バルコニー・庭

主要採光面:西

駐車場

その他ランニングコスト

その他一時金

条件等

土地権利

所有権

地目

宅地

都市計画

非線引区域

用途地域

商業地域

地域地区

建ぺい率・容積率

80%・400%

容積率の制限内容

地勢

平坦

国土法

接道

【角地】 西 幅:15m 公道 接面:6.4m/北 幅:4m 公道 接面:20.2m

セットバック

法令上の制限

再建築

建築確認

施工会社名

インスペクション

瑕疵保証

瑕疵保険

設備保証

性能評価

リフォーム・
リノベーション

設備

温水洗浄便座、浴室に窓、照明器具、プロパンガス、電気、上水道、下水道

特記

空き家バンク登録物件

備考

取引態様

一般媒介

担当者

※物件に関するお問合せは、物件詳細ページの「情報提供会社」に表示されている不動産会社へ直接お願いいたします。

※間取り図は、現況を優先させていただきます。

周辺環境情報
幼稚園、保育園

氷見市しんまちこども園 (630m)

小学校

氷見市立比美乃江小学校 (1,249m)

中学校

氷見市立北部中学校 (2,809m)

コンビニ

ローソン氷見比美町店 (153m)

ショッピング施設

大阪屋ショップハッピータウン店 (617m)

ショッピング施設

サンコー氷見中央店 (1,531m)

販売店

クスリのアオキ氷見幸町店 (736m)

病院

金沢医科大学氷見市民病院 (2,009m)

情報提供会社

(有)松栄地所

会社情報を見る

住所

富山県氷見市鞍川1426

TEL

0766-74-5686

FAX

0766-74-5860

免許番号

富山県知事免許(9)第1728号

所属団体

(公社)富山県宅地建物取引業協会
北陸不動産公正取引協議会

loading