売買 一棟売アパート

東京都葛飾区堀切5丁目

価格

12,800万円

建物構造 木造
土地面積 実測206.33㎡(約62.41坪)
建物延面積 297.58㎡
階建 地上2階
築年月 2017[H29]年09月
用途地域 近隣商業地域(第一種住居地域)
現地(外観)

現地(外観)

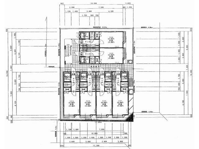
間取り図

間取り図

現地(外観)

現地(外観)

物件詳細

物件種別

売住宅以外の建物全部

物件種目

一棟売アパート

情報更新日

2026年02月19日

次回更新予定日

2026年03月19日

物件番号

5104102102

所在地

東京都葛飾区堀切5丁目 地図を見る

建物名

交通

京成電鉄本線堀切菖蒲園駅 徒歩4分  駅までmap

小学校

中学校

現況

賃貸中

引渡可能時期

相談

価格

12,800万円

土地面積

実測 206.33㎡ (約62.41坪)

私道面積

建物構造

木造

階建

地上2階

築年月

2017[H29]年09月

建物延面積

297.58㎡

建物面積

間取り

バルコニー

駐車場

その他ランニングコスト

その他一時金

条件等

オーナーチェンジ
年間予定賃料収入 793.6万円
年間予定利回り 6.2%

土地権利

旧法賃借権 地代:599,520円/月 借地期間:20年

地目

宅地

都市計画

市街化区域

用途地域

近隣商業地域(第一種住居地域)

地域地区

建ぺい率・容積率

60%・200%

容積率の制限内容

地勢

平坦

国土法

接道

【角地】 南 幅:4m 公道/東 幅:4.5m 公道

セットバック

法令上の制限

再建築

インスペクション

性能評価

工事完了予定年月

2017年08月

建築確認

施工会社名

株式会社アミックス

管理員の勤務形態

巡回

総戸数

12戸

リフォーム・
リノベーション

設備

トイレ、バス・トイレ別、シャワー、収納スペース、エアコン、光ファイバー、インターネット対応、室内洗濯機置場、雨戸、シャッター、オートロック、非接触型ICカードキー、火災報知器(報知器)、都市ガス、給湯、宅配BOX

特記

工事完了予定年月:2017年08月

備考

サブリース契約中!

取引態様

売主

担当者

※物件に関するお問合せは、物件詳細ページの「情報提供会社」に表示されている不動産会社へ直接お願いいたします。

※間取り図は、現況を優先させていただきます。

情報提供会社

(有)ベストプラン

会社情報を見る

住所

東京都葛飾区西亀有2丁目30-2プラン西亀有102

交通

東京地下鉄千代田線綾瀬 徒歩7分

TEL

03-3606-2255

FAX

03-6231-2475

免許番号

東京都知事免許(5)第83958号

所属団体

(公社)東京都宅地建物取引業協会
(公社)首都圏不動産公正取引協議会

loading