売買 中古一戸建

大阪府大阪市阿倍野区帝塚山1丁目 4LDK

価格

1,600万円

築年月 1982[S57]年01月
土地面積 公簿56.16㎡(約16.98坪)
建物面積 107.53㎡(約32.52坪)
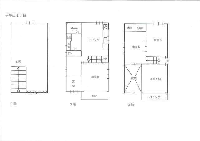
階建 地上3階
間取り 4LDK
建・容率 80%・200%
現地(外観)

現地(外観)

現地(外観)

現地(外観)

現地(駐車場)

現地(駐車場)

玄関/吹き抜け

玄関/吹き抜け

キッチン

キッチン

リビング

リビング

浴室

浴室

トイレ

トイレ

リビング以外の居室/1階 和室8帖

リビング以外の居室/1階 和室8帖

階段

階段

リビング以外の居室/2階 洋室 ベランダ

リビング以外の居室/2階 洋室 ベランダ

リビング以外の居室/2階 和室6帖

リビング以外の居室/2階 和室6帖

リビング以外の居室/2階 和室6帖

リビング以外の居室/2階 和室6帖

リビング以外の居室/2階 和室6帖

リビング以外の居室/2階 和室6帖

リビング以外の居室/2階 床の間 収納

リビング以外の居室/2階 床の間 収納

物件詳細

物件種別

売一戸建て住宅等

物件種目

中古一戸建

情報更新日

2026年03月17日

次回更新予定日

2026年03月31日

物件番号

5104133997

所在地

大阪府大阪市阿倍野区帝塚山1丁目 地図を見る

交通

南海電鉄高野線帝塚山駅 徒歩5分  駅までmap
阪堺電気軌道阪堺線東玉出駅 徒歩5分  駅までmap

小学校

中学校

現況

空家

引渡可能時期

相談

価格

1,600万円

土地面積

公簿 56.16㎡ (約16.98坪)

私道面積

120.51㎡ (負担割合:1/9)

建物構造

木造

階建

地上3階

築年月

1982[S57]年01月

建物面積

107.53㎡ (約32.52坪)

間取り

4LDK 和室8帖/和室6帖/和室6帖/洋室6帖
和 8・6・6 洋 6

バルコニー・庭

主要採光面:東

駐車場

駐車場2台分

その他ランニングコスト

その他一時金

条件等

土地権利

所有権

地目

宅地

都市計画

市街化区域

用途地域

第二種中高層住居専用地域

地域地区

建ぺい率・容積率

80%・200%

容積率の制限内容

地勢

国土法

接道

【一方】 南西 私道 接面:4m

セットバック

法令上の制限

再建築

再建築不可

建築確認

施工会社名

インスペクション

瑕疵保証

瑕疵保険

設備保証

性能評価

リフォーム・
リノベーション

設備

浴室に窓、都市ガス、電気、上水道、下水道

特記

閑静な住宅街

備考

取引態様

一般媒介

担当者

※物件に関するお問合せは、物件詳細ページの「情報提供会社」に表示されている不動産会社へ直接お願いいたします。

※間取り図は、現況を優先させていただきます。

情報提供会社

(株)コモンズ

会社情報を見る

住所

大阪府大阪市東成区大今里西3丁目5-5

交通

大阪市高速軌道今里筋線今里 徒歩分

TEL

06-6973-0208

FAX

06-6973-0200

免許番号

大阪府知事免許(9)第031497号

所属団体

(一社)大阪府宅地建物取引業協会
(公社)近畿地区不動産公正取引協議会

loading