売買 中古一戸建

兵庫県姫路市船津町 8SDK

価格

890万円

築年月 1900[M33]年01月
土地面積 公簿852.71㎡(約257.94坪)
建物面積 171.9㎡(約51.99坪)
階建 地上2階
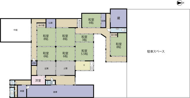
間取り 8SDK
建・容率 60%・200%

古き良き日本家屋のぬくもり感じる、木造物件。倉庫付きで土地面積852.71㎡と広いことから様々なご用途でご使用できます。

現地(外観)

現地(外観)

現地(外観)

現地(外観)

物件詳細

物件種別

売一戸建て住宅等

物件種目

中古一戸建

情報更新日

2025年09月26日

次回更新予定日

2025年11月21日

物件番号

5103624983

所在地

兵庫県姫路市船津町

交通

播但線溝口駅 徒歩29分 神姫バス 船津上野停 徒歩4分

小学校

姫路市立船津小学校 588m

中学校

姫路市立香寺中学校 2,505m

現況

空家

引渡可能時期

相談

価格

890万円

土地面積

公簿 852.71㎡ (約257.94坪)

私道面積

建物構造

木造

階建

地上2階

築年月

1900[M33]年01月

建物面積

171.9㎡ (約51.99坪)

間取り

8SDK 洋室8帖/洋室8帖/洋室8帖/洋室6帖/洋室6帖/洋室6帖/洋室5.5帖/洋室3帖/SDK3帖/サービスルーム3帖
洋 8・8・8・6・6・6・5.5・3 DK 3 S 3

バルコニー・庭

主要採光面:南 /庭有

駐車場

有 無料 駐車場3台分以上

その他ランニングコスト

その他一時金

条件等

土地権利

所有権

地目

宅地

都市計画

調整区域

用途地域

無指定

地域地区

建ぺい率・容積率

60%・200%

容積率の制限内容

地勢

平坦

国土法

接道

【一方】 西 幅:3.9m 公道 接面:43m

セットバック

法令上の制限

再建築

建築確認

施工会社名

インスペクション

瑕疵保証

瑕疵保険

設備保証

性能評価

リフォーム・
リノベーション

設備

温水洗浄便座、IHクッキングヒーター、エアコン、エアコン2台以上、プロパンガス、電気、上水道、下水道

特記

閑静な住宅街

備考

・建築年月日現在確認中です。表示されている築年月日は適当です。・地目畑有り、現状宅地・地目変更にかかる費用は買主負担

取引態様

一般媒介

担当者

津田 (電話)080-4354-5072

※物件に関するお問合せは、物件詳細ページの「情報提供会社」に表示されている不動産会社へ直接お願いいたします。

※間取り図は、現況を優先させていただきます。

周辺環境情報
ショッピング施設

マックスバリュ溝口店 (1,332m)

コンビニ

セブンイレブン香寺溝口店 (1,033m)

中学校

姫路市立香寺中学校 (2,505m)

小学校

姫路市立船津小学校 (588m)

幼稚園、保育園

姫路市立船津こども園 (606m)

病院

医療法人内海慈仁会姫路北病院 (2,233m)

郵便局

溝口郵便局 (1,123m)

銀行

但陽信用金庫溝口支店 (1,261m)

情報提供会社

(株)旭パワーマネジメント

会社情報を見る

住所

兵庫県姫路市青山西5丁目1-21

交通

姫新線播磨高岡 徒歩分

TEL

079-267-7711

FAX

079-267-7712

免許番号

兵庫県知事免許(03)第0451447号

所属団体

(一社)兵庫県宅地建物取引業協会
(公社)近畿地区不動産公正取引協議会

情報提供会社
loading