売買 住宅付き店舗

大分県臼杵市大字市浜

価格

5,000万円

建物構造 鉄骨造
土地面積 公簿595㎡(約179.98坪)
建物延面積 360.18㎡
階建 地上2階
築年月 1999[H11]年02月
用途地域 準工業地域

国道沿いのスーパーや飲食店の立ち並ぶ地域です。駐車場も大きく利便性の良い場所です。店舗駐車場と別に隣地に有料駐車場もあります。

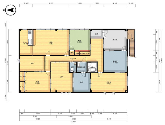
間取り図/現状と異なる場合は現状優先とします。北側座敷個室は襖を取り外

間取り図/現状と異なる場合は現状優先とします。北側座敷個室は襖を取り外

現状と異なる場合は現状優先とします。

現状と異なる場合は現状優先とします。

物件詳細

物件種別

売住宅以外の建物全部

物件種目

住宅付き店舗

情報更新日

2026年04月04日

次回更新予定日

2026年04月18日

物件番号

5103945694

所在地

大分県臼杵市大字市浜 地図を見る

建物名

臼杵市市浜  住宅付き店舗

交通

日豊本線上臼杵駅 徒歩8分  駅までmap

小学校

中学校

現況

居住中

引渡可能時期

相談

価格

5,000万円

土地面積

公簿 595㎡ (約179.98坪)

私道面積

建物構造

鉄骨造

階建

地上2階

築年月

1999[H11]年02月

建物延面積

360.18㎡

建物面積

間取り

バルコニー

駐車場

その他ランニングコスト

その他一時金

条件等

土地権利

所有権

地目

宅地

都市計画

非線引区域

用途地域

準工業地域

地域地区

建ぺい率・容積率

60%・200%

容積率の制限内容

地勢

平坦

国土法

接道

【角地】 北 幅:10.8m 公道 接面:28m/西 幅:6m 公道 接面:20.6m

セットバック

法令上の制限

再建築

インスペクション

性能評価

工事完了予定年月

建築確認

施工会社名

管理員の勤務形態

総戸数

リフォーム・
リノベーション

設備

特記

備考

取引態様

一般媒介

担当者

※物件に関するお問合せは、物件詳細ページの「情報提供会社」に表示されている不動産会社へ直接お願いいたします。

※間取り図は、現況を優先させていただきます。

情報提供会社

(株)樹の家こころ舎大分光吉店

住所

大分県大分市大字光吉566ー1

TEL

097-567-5555

FAX

097-567-5553

免許番号

大分県知事免許(1)第3534号

所属団体

(公社)大分県宅地建物取引業協会
(一社)九州不動産公正取引協議会

loading