賃貸 店舗事務所

群馬県邑楽郡邑楽町大字篠塚

賃料

15万円

管理費等
敷金 1ヶ月
礼金
保証金
階建 地上2階
建物面積 252.52㎡(約76.38坪)

~邑楽町篠塚~国道354線沿いで篠塚駅から徒歩10分の場所にあります!事務所の他に住居スペースもあります!お気軽にお問合せい下さい!

現地(外観)

現地(外観)

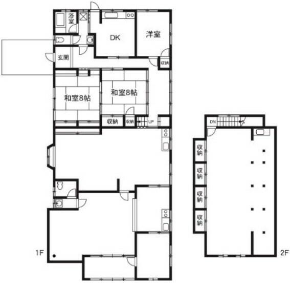
間取り図

間取り図

物件詳細

物件種別

賃貸住宅以外の建物全部

物件種目

店舗事務所

情報更新日

2026年03月09日

次回更新予定日

2026年05月18日

物件番号

6973241496

所在地

群馬県邑楽郡邑楽町大字篠塚

建物名

交通

東武鉄道小泉線篠塚駅 徒歩11分
東武鉄道小泉線東小泉駅 徒歩25分

小学校

中学校

現況

空家

入居可能時期

相談

賃料

15万円

管理費

共益費

雑費

駐車場

有 無料

その他ランニングコスト

礼金

敷金・精算

1ヶ月

保証金・償却

権利金

造作譲渡

鍵交換代

室内清掃費

その他一時金

建物構造

木造

階建・所在階

地上2階

築年月

1984[S59]年07月

土地面積

公簿 1,380.65㎡ (約417.64坪)

建物面積

252.52㎡(約76.38坪)

間取り

バルコニー

総戸数

契約期間

3年

更新料

フリーレント

定期借家

保険


※入居者や条件によっては、保険等内容が変更になる場合があります。

賃貸保証

加入要(契約時に家賃の100%、更新時に20000円/年)

クレジットカード決済

条件等

飲食店不可

管理会社名

管理員の勤務形態

インスペクション

性能評価

リフォーム・
リノベーション

地目

都市計画

用途地域

地域地区

地勢

建ぺい率・容積率

容積率の制限内容

法令上の制限

接道

【角地】 南 幅:26m 公道/西 幅:11.8m 公道

設備

トイレ、バス・トイレ別、シャワー、室内洗濯機置場、プロパンガス、動力あり、給湯、駐輪場有(無料)、バイク置場有(無料)

特記

備考

国道354線沿いの店舗・事務所になります!飲食店不可になります。

取引態様

一般媒介

担当者

鶴巻 太 (電話)0276-25-3232

※物件に関するお問合せは、物件詳細ページの「情報提供会社」に表示されている不動産会社へ直接お願いいたします。

※間取り図は、現況を優先させていただきます。

周辺環境情報
ショッピング施設

カスミ大泉店 (2,139m)

コンビニ

ローソン邑楽篠塚店 (596m)

病院

医療法人社団醫光会おうら病院 (1,250m)

郵便局

長柄郵便局 (2,086m)

役所

邑楽町役場 (2,220m)

警察署、交番

大泉警察署 (1,415m)

情報提供会社

(株)青い空鶴巻

住所

群馬県太田市東本町23-12

TEL

0276-25-3232

FAX

0276-26-1767

免許番号

群馬県知事免許(3)第7347号

所属団体

(一社)群馬県宅地建物取引業協会
(公社)首都圏不動産公正取引協議会

loading