売買 中古一戸建

香川県観音寺市西本町2丁目 5DK

価格

350万円

築年月 1961[S36]年01月
土地面積 公簿111.73㎡(約33.79坪)
建物面積 119.43㎡(約36.12坪)
階建 地上2階
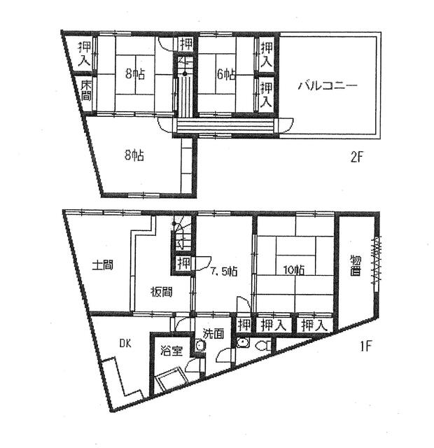
間取り 5DK
建・容率 60%・200%

利回り18%強の収益物件です。観音寺小学校至近、賃借人様は入居されてから約6年になります。

現地(外観)

現地(外観)

リビング以外の居室/現賃借人入居前(約6年前)の写真です。

リビング以外の居室/現賃借人入居前(約6年前)の写真です。

リビング以外の居室/現賃借人入居前(約6年前)の写真です。

リビング以外の居室/現賃借人入居前(約6年前)の写真です。

リビング以外の居室/現賃借人入居前(約6年前)の写真です。

リビング以外の居室/現賃借人入居前(約6年前)の写真です。

玄関/現賃借人入居前(約6年前)の写真です。

玄関/現賃借人入居前(約6年前)の写真です。

キッチン/現賃借人入居前(約6年前)の写真です。

キッチン/現賃借人入居前(約6年前)の写真です。

キッチン/現賃借人入居前(約6年前)の写真です。

キッチン/現賃借人入居前(約6年前)の写真です。

トイレ/現賃借人入居前(約6年前)の写真です。

トイレ/現賃借人入居前(約6年前)の写真です。

浴室/現賃借人入居前(約6年前)の写真です。

浴室/現賃借人入居前(約6年前)の写真です。

洗面台・洗面所/現賃借人入居前(約6年前)の写真です。

洗面台・洗面所/現賃借人入居前(約6年前)の写真です。

洗面台・洗面所/現賃借人入居前(約6年前)の写真です。

洗面台・洗面所/現賃借人入居前(約6年前)の写真です。

現賃借人入居前(約6年前)の写真です。

現賃借人入居前(約6年前)の写真です。

リビング以外の居室/現賃借人入居前(約6年前)の写真です。

リビング以外の居室/現賃借人入居前(約6年前)の写真です。

リビング以外の居室/現賃借人入居前(約6年前)の写真です。

リビング以外の居室/現賃借人入居前(約6年前)の写真です。

リビング以外の居室/現賃借人入居前(約6年前)の写真です。

リビング以外の居室/現賃借人入居前(約6年前)の写真です。

物件詳細

物件種別

売一戸建て住宅等

物件種目

中古一戸建

情報更新日

2025年09月09日

次回更新予定日

2025年11月18日

物件番号

5103471160

所在地

香川県観音寺市西本町2丁目 地図を見る

交通

予讃線観音寺駅 徒歩15分  駅までmap

小学校

観音寺市立観音寺小学校 490m

中学校

現況

賃貸中

引渡可能時期

即時

価格

350万円

土地面積

公簿 111.73㎡ (約33.79坪)

私道面積

建物構造

木造

階建

地上2階

築年月

1961[S36]年01月

建物面積

119.43㎡ (約36.12坪)

間取り

5DK 和室10帖/和室8帖/和室6帖/洋室8帖/洋室7.5帖
和 10・8・6 洋 8・7.5

バルコニー・庭

駐車場

有 無料

その他ランニングコスト

その他一時金

条件等

オーナーチェンジ
年間予定賃料収入 64.8万円
年間予定利回り 18.51%

土地権利

所有権

地目

宅地

都市計画

非線引区域

用途地域

第一種住居地域

地域地区

建ぺい率・容積率

60%・200%

容積率の制限内容

地勢

平坦

国土法

接道

【一方】 北 幅:3m 公道 接面:20m

セットバック

法令上の制限

再建築

建築確認

施工会社名

インスペクション

瑕疵保証

瑕疵保険

設備保証

性能評価

リフォーム・
リノベーション

設備

浴室に窓、照明器具、電気、上水道、下水道

特記

備考

取引態様

専任媒介

担当者

庄司 (電話)0875-23-2638

※物件に関するお問合せは、物件詳細ページの「情報提供会社」に表示されている不動産会社へ直接お願いいたします。

※間取り図は、現況を優先させていただきます。

周辺環境情報
マルナカ八幡店 (1,208m)
ショッピング施設

マルナカ八幡店 (1,208m)

フレッシュショップトマト観音寺店 (1,291m)
ショッピング施設

フレッシュショップトマト観音寺店 (1,291m)

ローソン観音寺七間橋町店 (729m)
コンビニ

ローソン観音寺七間橋町店 (729m)

観音寺市立観音寺小学校 (490m)
小学校

観音寺市立観音寺小学校 (490m)

観音寺市立観音寺こども園 (502m)
幼稚園、保育園

観音寺市立観音寺こども園 (502m)

観音寺中洲郵便局 (669m)
郵便局

観音寺中洲郵便局 (669m)

観音寺市役所 (1,906m)
役所

観音寺市役所 (1,906m)

情報提供会社

(有)庄栄不動産

会社情報を見る

住所

香川県観音寺市植田町351-5

交通

予讃線観音寺 徒歩20分

TEL

0875-23-2638

FAX

0875-25-4888

免許番号

香川県知事免許(9)第3070号

所属団体

(公社)香川県宅地建物取引業協会
四国地区不動産公正取引協議会

情報提供会社
loading