賃貸 貸家

香川県丸亀市土器町東5丁目 2LDK

icon-new

賃料

4万円

管理費等
敷金 2ヶ月 8万円
礼金
階建 地上2階
建物面積 62.1㎡(約18.78坪)
間取り 2LDK

内装リフォーム済みです。駐車場1台分無料

現地(外観)

現地(外観)

リビング以外の居室

リビング以外の居室

リビング以外の居室

リビング以外の居室

リビング以外の居室

リビング以外の居室

リビング以外の居室

リビング以外の居室

リビング以外の居室

リビング以外の居室

リビング以外の居室

リビング以外の居室

収納

収納

収納

収納

リビング以外の居室

リビング以外の居室

キッチン

キッチン

キッチン

キッチン

収納

収納

浴室

浴室

浴室

浴室

物件詳細

物件種別

賃貸一戸建て住宅等

物件種目

貸家

情報更新日

2025年11月05日

次回更新予定日

2025年11月19日

物件番号

5103113000

所在地

香川県丸亀市土器町東5丁目 地図を見る

建物名

青の山貸家

交通

予讃線丸亀駅 徒歩33分  駅までmap
予讃線宇多津駅 徒歩25分  駅までmap

小学校

中学校

現況

空家

入居可能時期

即時

賃料

4万円

管理費

共益費

雑費

町内会費

駐車場

有 無料 駐車場2台分

その他ランニングコスト

礼金

敷金・精算

2ヶ月 8万円

保証金・償却

鍵交換代

室内清掃費

その他一時金

建物構造

木造

階建

地上2階

築年月

1978[S53]年03月

土地面積

建物面積

62.1㎡(約18.78坪)

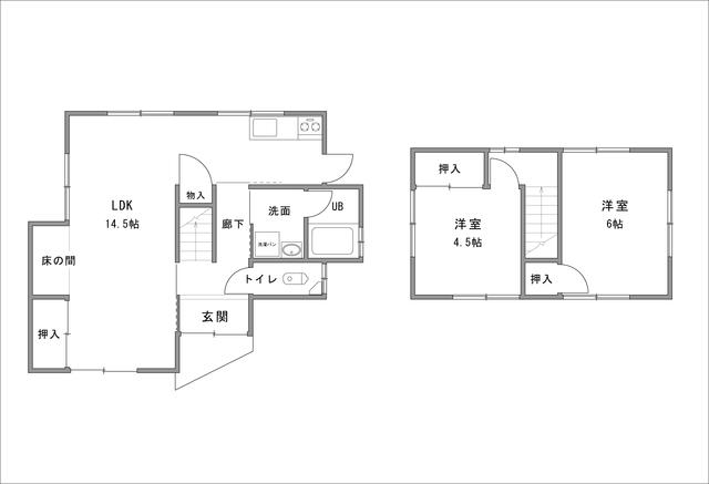
間取り

2LDK

間取内訳

洋室6帖/洋室4.5帖/LDK14.5帖
洋 6・4.5 LDK 14.5

バルコニー・庭

契約期間

2年

更新料

フリーレント

定期借家

保険

要、11,400円、2年、火災総合(例)
※入居者や条件によっては、保険等内容が変更になる場合があります。

賃貸保証

加入要(全保連株式会社、利用料金:月額賃料の120%を入居時1回のお支払い)

設備保証

クレジットカード決済

条件等

二人入居可

地目

都市計画

用途地域

地域地区

建ぺい率・容積率

容積率の制限内容

法令上の制限

接道

インスペクション

性能評価

リフォーム・
リノベーション

リフォーム:内装 2018年07月完了 (壁・天井(クロス・塗装等))

設備

トイレ、バス・トイレ別、洗面所、洗面所独立、シャワー付洗面化粧台、システムキッチン、ガスコンロ可、室内洗濯機置場、照明器具、プロパンガス、給湯

特記

閑静な住宅街

備考

駐車場1台分無料内装リフォーム済み

取引態様

一般媒介

担当者

※物件に関するお問合せは、物件詳細ページの「情報提供会社」に表示されている不動産会社へ直接お願いいたします。

※間取り図は、現況を優先させていただきます。

周辺環境情報
マルナカ土器店 (771m)
ショッピング施設

マルナカ土器店 (771m)

ハローズ丸亀店 (1,634m)
ショッピング施設

ハローズ丸亀店 (1,634m)

ディスカウントドラッグコスモス土器店 (799m)
販売店

ディスカウントドラッグコスモス土器店 (799m)

ローソン丸亀土器町東九丁目店 (1,079m)
コンビニ

ローソン丸亀土器町東九丁目店 (1,079m)

コメダ珈琲丸亀土器店 (703m)
飲食店

コメダ珈琲丸亀土器店 (703m)

ジョイフル丸亀店 (1,148m)
飲食店

ジョイフル丸亀店 (1,148m)

高松信用金庫丸亀支店 (1,038m)
銀行

高松信用金庫丸亀支店 (1,038m)

郵便局

丸亀土器東郵便局 (594m)

情報提供会社

(有)佐野興産

会社情報を見る

住所

香川県丸亀市土器町 東8丁目472

交通

予讃線丸亀 徒歩19分

TEL

0877-58-4550

FAX

0877-58-4556

免許番号

香川県知事免許(5)第3816号

所属団体

(公社)香川県宅地建物取引業協会
四国地区不動産公正取引協議会

情報提供会社
loading