賃貸 店舗事務所

神奈川県足柄上郡大井町金子

icon-new

賃料

27.5万円

管理費等
敷金
礼金
保証金 3ヶ月
階建・階 地上4階 2階部分
使用部分面積 156.45㎡(約47.32坪)

この物件は月35.2万円と、グレードの高い物件となっております。駅から徒歩8分に立地する物件です。6台分は敷地内に駐車できます。駐車場の空きがあるので、他で駐車場を契約する必要がありません。

現地(外観)

現地(外観)

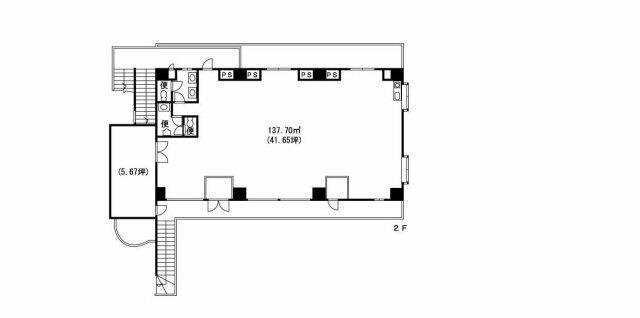
間取り図

間取り図

共用部(その他)

共用部(その他)

その他設備

その他設備

物件詳細

物件種別

賃貸住宅以外の建物一部

物件種目

店舗事務所

情報更新日

2026年03月04日

次回更新予定日

2026年03月18日

物件番号

5104095553

所在地

神奈川県足柄上郡大井町金子 地図を見る

建物名

交通

御殿場線相模金子駅 徒歩8分  駅までmap
小田急電鉄小田原線新松田駅 徒歩23分  駅までmap
御殿場線松田駅 徒歩29分  駅までmap

小学校

中学校

現況

空家

入居可能時期

相談

賃料

27.5万円

管理費

共益費

雑費

駐車場

有 無料

その他ランニングコスト

礼金

敷金・精算

保証金・償却

3ヶ月

権利金

造作譲渡

鍵交換代

室内清掃費

その他一時金

建物構造

RC

階建・所在階

地上4階 2階部分

築年月

1996[H8]年06月

使用部分面積

156.45㎡ (約47.32坪)

間取り

バルコニー

総戸数

契約期間

3年

更新料

フリーレント

定期借家

保険


※入居者や条件によっては、保険等内容が変更になる場合があります。

賃貸保証

(ニッポンインシュア 要確認)

クレジットカード決済

条件等

管理会社名

管理員の勤務形態

インスペクション

性能評価

リフォーム・
リノベーション

用途地域

接道

設備

トイレ

特記

備考

設備・環境ともに良い27.5万円の物件です。車をお持ちの方にお勧め、只今6台分空きスペースがあります。根強いニーズを誇る駅近の物件となり、徒歩8分に駅があります。今なら駐車場に空きあり、お車をお持ちの方に。設備・環境ともに良い27.5万円の物件です。車をお持ちの方にお勧め、只今6台分空きスペースがあります。根強いニーズを誇る駅近の物件となり、徒歩8分に駅があります。今なら駐車場に空きあり、お車をお持ちの方に。

取引態様

一般媒介 (管理コード 555690000315381)

担当者

※物件に関するお問合せは、物件詳細ページの「情報提供会社」に表示されている不動産会社へ直接お願いいたします。

※間取り図は、現況を優先させていただきます。

情報提供会社

(株)ユーミーネット

会社情報を見る

住所

神奈川県藤沢市藤沢223-2(藤沢ビルⅠ 3F)

交通

東海道本線(JR東日本)藤沢 徒歩7分

TEL

0466-90-5732

FAX

0466-20-8027

免許番号

神奈川県知事免許(02)第030000号

所属団体

(公社)神奈川県宅地建物取引業協会
(公社)首都圏不動産公正取引協議会

loading