売買 店舗付き住宅

福井県福井市宝永4丁目

価格

3,500万円

建物構造 鉄骨造
土地面積 公簿131.14㎡(約39.66坪)
建物延面積 383.9㎡
階建 地上4階
築年月 1994[H6]年03月
用途地域 近隣商業地域
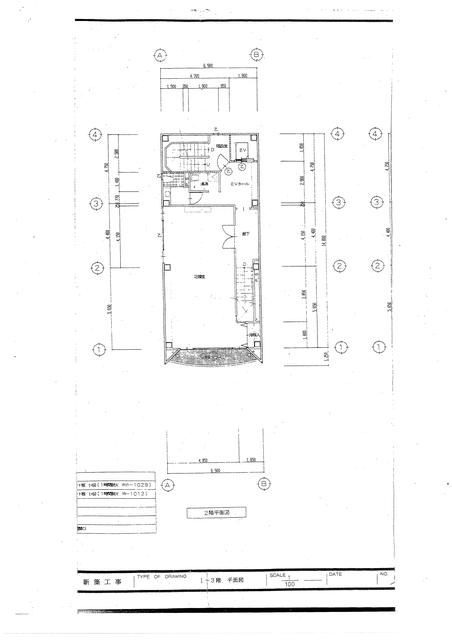
間取り図/1階

間取り図/1階

間取り図/2階

間取り図/2階

間取り図/3階

間取り図/3階

間取り図/4階

間取り図/4階

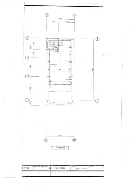
間取り図/PH階

間取り図/PH階

間取り図/PH屋上

間取り図/PH屋上

物件詳細

物件種別

売住宅以外の建物全部

物件種目

店舗付き住宅

情報更新日

2025年11月27日

次回更新予定日

2025年12月11日

物件番号

5103620904

所在地

福井県福井市宝永4丁目

建物名

交通

福井鉄道福武線仁愛女子高校駅 徒歩5分
北陸新幹線福井駅 徒歩14分

小学校

福井市立順化小学校 62m

中学校

福井市立明道中学校 1,290m

現況

空家

引渡可能時期

相談

価格

3,500万円

土地面積

公簿 131.14㎡ (約39.66坪)

私道面積

建物構造

鉄骨造

階建

地上4階

築年月

1994[H6]年03月

建物延面積

383.9㎡

建物面積

間取り

バルコニー

駐車場

その他ランニングコスト

その他一時金

条件等

土地権利

所有権

地目

宅地

都市計画

市街化区域

用途地域

近隣商業地域

地域地区

建ぺい率・容積率

80%・300%

容積率の制限内容

地勢

国土法

接道

【一方】 南 幅:27m 公道 接面:7.1m

セットバック

法令上の制限

再建築

インスペクション

性能評価

工事完了予定年月

建築確認

施工会社名

管理員の勤務形態

総戸数

リフォーム・
リノベーション

設備

特記

備考

取引態様

一般媒介

担当者

中広 (電話)090-8265-8188

※物件に関するお問合せは、物件詳細ページの「情報提供会社」に表示されている不動産会社へ直接お願いいたします。

※間取り図は、現況を優先させていただきます。

周辺環境情報
中学校

福井市立明道中学校 (1,290m)

小学校

福井市立順化小学校 (62m)

郵便局

福井中央郵便局 (640m)

役所

福井市役所 (436m)

情報提供会社

(株)中広地所

会社情報を見る

住所

福井県福井市中央2丁目2-22

交通

JR北陸本線福井 徒歩3分

TEL

0776-27-4500

FAX

0776-27-4547

免許番号

福井県知事免許(14)第391号

所属団体

(公社)福井県宅地建物取引業協会
北陸不動産公正取引協議会

情報提供会社
loading